














































Verkoop en informatie
Grote Vaartlaan 9, 9642PA Veendam
Vraagprijs
WoonoppervlakWoonopp.
80 m2PerceeloppervlakPerceelopp.
149 m2Omschrijving
Op rustige locatie en met vrij uitzicht over groen voorzieningen ligt deze goed onderhouden tussenwoning met vrijstaande stenen schuur, garage en volledig bestraatte achtertuin op het zuiden.
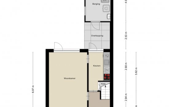
Indeling: Entree/hal, hangend toilet met fontein, provisiekast, doorzonkamer ca.6.95x3.60 met laminaat vloer, dichte keuken ca.2.65x1.90m (plv) moderne inbouwkeuken (2025) met inductie kookplaat, afzuigkap, vaatwasser en een combi-oven (plv.).
1e Verdieping: overloop, 3 slaapkamers resp. ca.2.85x2.65m, ca.3.95x2.80m en ca.2.95x2.75m (alle laminaatvloer en kunststof kozijnen), badkamer met douche, wastafelmeubel en 2e hangend toilet, via vaste trap naar...
2e Verdieping: begaanbare zolderruimte ca.2.80x1.85m met laminaatvloer en berging achter de knieschotten.
Info:
- bouwjaar 1966
- perceel ca.130m²
- dak-, muur-, vloerisolatie
- grotendeels dubbel glas
- vaste trap naar zolder
- moderne keuken uit 2025
- nieuwe groepenkast
- nieuwe dakgoten
- c.v. verwarmd, Remeha HR combi 2018
- garagebox ca.5.75x2.90m met elektrische sectionaal deur en kunststof boeiboorden
- stenen schuur ca.4.00x2.30m (nieuw dak) met overkapping
- energielabel C tot 12-12-2033
Kenmerken
Algemeen
Bouw
Oppervlakten en inhoud
Indeling
Energie
Brochure
Klik op de icoontjes om de documenten te downloaden