




































































Verkoop en informatie
Jan Oldenburgerstraat E 12, 9663RS Nieuwe Pekela
Vraagprijs
WoonoppervlakWoonopp.
182 m2PerceeloppervlakPerceelopp.
2.532 m2Omschrijving
Prachtige, moderne en zeer goed onderhouden vrijstaande woning aan het vis- en vaarwater.
Gelegen aan het rustige vis- en vaarwater, biedt deze moderne, vrijstaande woning uit 2018 alles wat u zoekt. Met een royale kavel van 2532m² geschikt voor het houden van een paard, levensloop bestendig wonen met slaapkamer en badkamer op de begane grond en een ruime dubbele garage met carport, is dit de ideale plek voor liefhebbers van ruimte en comfort. Ligging nabij Veendam, Winschoten en Stadskanaal en via de N33 bent u binnen 30 minuten in Groningen of Assen. Verder zijn alle lokale voorzieningen op korte afstand bereikbaar.
Begane grond: zijentree/hal, modern hangend toilet met fontein, een trap naar de verdieping, een ruime woonkamer ca.64m² (pvc vloer) L-vormig met 2 erkers, open keuken ca.20m² met terras deuren en een moderne hoekinbouwkeuken voorzien van inductie kookplaat, rvs afzuigkap, koelkast, combi oven, vaatwasser en hardstenen aanrechtblad, aangrenzend een royale bijkeuken ca.2.50x1.30m, achterhal, badkamer ca.2.45x2.45m met inloopdouche, wastafelmeubel en toilet en slaapkamer ca.4.20x3.75m met terrasdeuren.
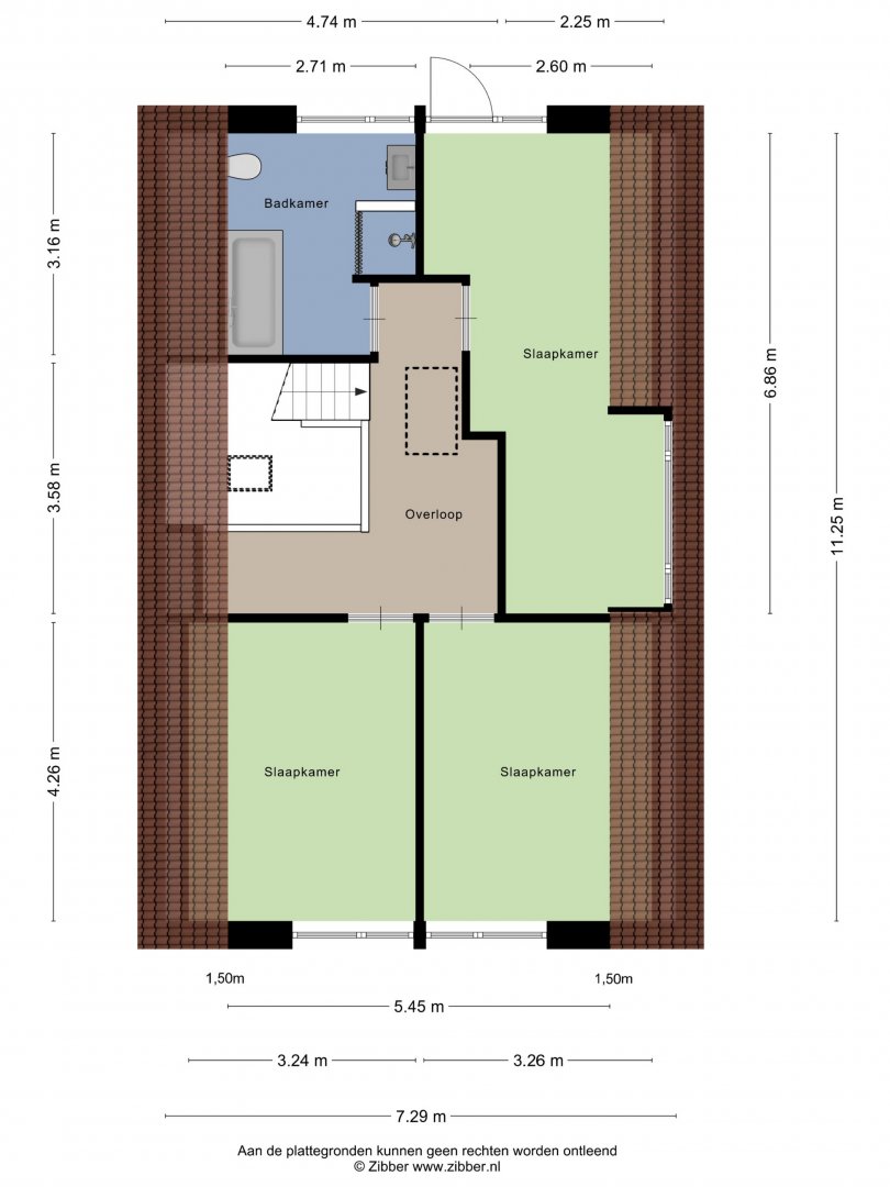
1e verdieping: op de verdieping bevinden zich een overloop, 3 ruime slaapkamers (laminaat vloeren) en een moderne badkamer met een royale inloopdouche, wastafelmeubel, toilet en een ligbad.
2e verdieping: begaanbare zolder via vlizotrap bereikbaar.
Informatie:
* Bouwjaar 2018
* Perceel 2532m²
* Dubbele garage in spouw ca.6.00x9.65m met elektrische deuren
* Elektrische zonwering
* 26 zonnepanelen
* Begane grond vloerverwarming
* Intergas HRE combi 2018
* Kunststof kozijnen met HR++ glas
* Dak-, muur- en vloerisolatie
* energielabel A+ tot 03-10-2035
Kenmerken
Algemeen
Bouw
Oppervlakten en inhoud
Indeling
Energie
Brochure
Klik op de icoontjes om de documenten te downloaden